Log In

Our Brands

Helpful Tools

Search

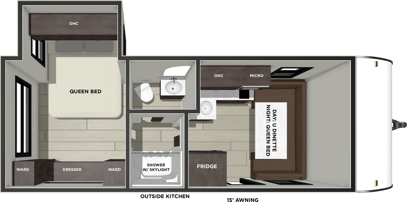
Explore 2026 Travel Trailers 169RSK Floorplan

Hitch Weight
535 lb.
UVW
4,274 lb.
CCC
1,361 lb.
Exterior Length
23' 0"
Exterior Height
10' 4"
Exterior Width
90"
Fresh Water
39 gal.
Gray Water
30 gal.
Black Water
30 gal.
Awning Size
15'

169RSK Floorplan Travel Trailers Features & Options

    • Construction Advantages:
    • 5/8" Tongue & Groove Plywood Floor Decking
    • Full Walk on Roof with SuperFlex Roof Membrane for Longevity w/ 5" Bowed Truss Roof Rafters
    • Powder Coated I-Beam Frame w/ Camber for Stiffer Structural Support
    • Nitrogen Filled Tires
    • 2" Wall Construction, 16" (or less) on Center
    • Fiberglass Insulation Throughout
    • 13 Ply Cross Micro-Laminated Header Beam Above Slide-Out
    • Triple Seal Slide-Out System for Moisture Barrier
    • Aerodynamic Front Profile for Easy Towing
    • .040 Smooth Aluminum Front Profile for Added Rigidity
    • Diamond Plate Rock Guard on Front for Protection
    • Color Coded Water Lines
    • Seamless Holding Tanks
    • Standard Features:
    • Waterproof Portable FM / Bluetooth Speaker System
    • Extra Thick Luxury Vinyl Flooring - NO CARPET!
    • Largest in Class Opening Panoramic Windows
    • Large 36x24 Shower Pan w/ Shower Surround + Waterproof Retractable Shower Door (No Curtain)
    • Extra Large Holding Tanks for Extended Camping - 75% Larger Than Average!
    • 26" Entrance Doors w/ Friction Hinge to Shut Slow
    • 7-Way Plug and Chain Holder for Towing Ease
    • 4 - 6 USB Ports w/ USB A and USB C Compatibility for Phone and Tablet Charging
    • Large Baggage Doors for Exterior Storage
    • Residential High Rise Kitchen Faucet
    • Backup Camera Ready (Harness and Wiring Installed)
    • 30 Amp Service w/ Auto Detect Converter (Works with Multiple Battery Types)
    • 13.5K BTU Roof Mounted Air Conditioner
    • 20K BTU Furnace
    • Microwave in Kitchen
    • 60,000BTU Extra Large On Demand Hot Water Heater
    • 2 Burner Cook Top with Glass Cover
    • Mirrored Vanity with Medicine Cabinet (available on most models)
    • Omni Directional Digital TV Antenna
    • Water Heater By-Pass
    • Roof Mounted Solar Inlet on Roof
    • Side Mounted Solar Inlet on Camp Side
    • Best-In-Class Package:
    • Power Awning w/ Adjustable Legs
    • Exterior LED Light Strip Under Awning
    • Backup Camera Prep
    • Solar Prep
    • USB Charging Outlets
    • Bluetooth Stereo
    • Upgraded Appliance Package
    • Friction Hinge Entrance Door
    • EZ Entrance: Double Step + XL Folding Grab Assist Handle
    • Extra Large Windows
    • Deep Single Basin Kitchen Sink
    • Upgraded Hypoallergenic Mattress
    • Outside Hot/Cold Shower
    • Black Tank Flush
    • Power Roof Vents
    • Platinum Package (Option)
    • Smooth Fiberglass Exterior Walls
    • Extended Power Package: Roof Mounted 200W Solar Panel, and 30 Amp Controller
    • Power Tongue Jack
    • Solid Entry Step with Stairs All Supported Directly to the Ground
    • Premier Partner Package Features (Mandatory)
    • Tinted Exterior Windows for Privacy
    • 60,000 Tankless on Demand Hot Water Heater
    • Extra Large Black Glass 12V Refrigerator
    • Underbelly Accessibelly System for Climate and Debris Protection
    • PROP TV FOR DISPLAY ONLY; NOT INCLUDED
    • Options: